遥拝阿蘇神社
建物データ
指定名称 | 遥拝阿蘇神社本殿、覆屋及び拝殿・神供所 本 殿 三間社流造、こけら葺、東向 寛保2年(1742)、棟札 拝 殿 桁行四間、梁間三間、入母屋造、桟瓦葺 寛保2年(1742) 神供所 桁行二間、梁間三間、切妻造、桟瓦葺 寛保2年(1742) 覆 屋 桁行三間、梁間四間、切妻造、鉄板葺 寛保2年(1742) |
---|---|
指定年月日 | 平成25年5月28日 |
所在地 | 人吉市上林町 |
修理記録 | |
保存修理工事報告書 | 『中世等文化遺産保護対策事業調査報告書』(平成8年3月、熊本県教育委員会) |
遥拝阿蘇神社

一説には当社は大同年中(806~810)の草創で、相良家二代の藤原頼親公の再栄とも記録にありますが、諸説あります。『歴代 嗣誠獨集覧』には、永正16年(1519)に藤原長祇公(相良家14代)により再興された記録があります。当時は村山の福川の辺りに社があり、夏の洪水のにより御神体と共に流され、御神体は八代郡高田に留まり、ここは「遥拝の瀬」と呼ばれます。そのため、社地を現在地に改め遷座されました。その後、八代にも此神を勧進して遥拝大明神と称しました。この宮が現在の遥拝神社です。
永正16年にも令和2年7月豪雨と同じように、洪水により色々なものが流されたことが判ります。
遥拝阿蘇神社本殿と覆屋

本殿と覆屋は同時期に建てられていますので、本殿の屋根は建立当時のものかも知れません。
遥拝阿蘇神社拝殿正側面

屋根と小屋組、軒廻りの変更はありますが、腕木・出桁より下の部分は建立当初の構えがよく残っています。
ここ見てください
拝殿正面奥行一間が吹放(開放)となり、建物内部に入れるようになっています。この時代より少し前から、仏堂でも内部に入りお参りできるように改造されたことが、建物に残る痕跡から判明しています。
遥拝阿蘇神社拝殿軒廻り

軒廻りは出桁より下は建立当初の部材で、垂木は屋根を桟瓦葺に変更した時の部材です。軒が深くなっていますので、向拝を後で付ける必要もなかったようです。
遥拝阿蘇神社神供所正面側

神供所は縦長の拝殿とL字型の配置としています。
遥拝阿蘇神社本殿正面

向拝柱斗栱間は装飾されています。中央間は琵琶板を嵌め中央に格狭間を彫り、端間は綺麗な形の本蟇股を入れています。
遥拝阿蘇神社本殿身舎小壁板格狭間

向拝琵琶板格狭間と同じ形です。
遥拝阿蘇神社本殿向拝本蟇股

本当に綺麗な形の本蟇股です。残念ながら内部の彫刻が欠失しています。
遥拝阿蘇神社本殿向拝木鼻

この木鼻は渦の下の円弧部分を外に出す意匠としています。
遥拝阿蘇神社本殿向拝木鼻

矢黒神社本殿と同じ様に円弧部分を内側に入れた意匠としています。絵様肘木も同じ系統の意匠としています。実肘木は向拝木鼻系統の意匠としています。
遥拝阿蘇神社拝殿で使われていた戸車

磁器製の戸車で、佐賀県で作られていました。中央の穴は樫などの硬い木の軸を挿す部分です。鉄や木製と比べると水に強く耐久性があります。
建物情報
※情報の内容は調査・研究成果によるものです。
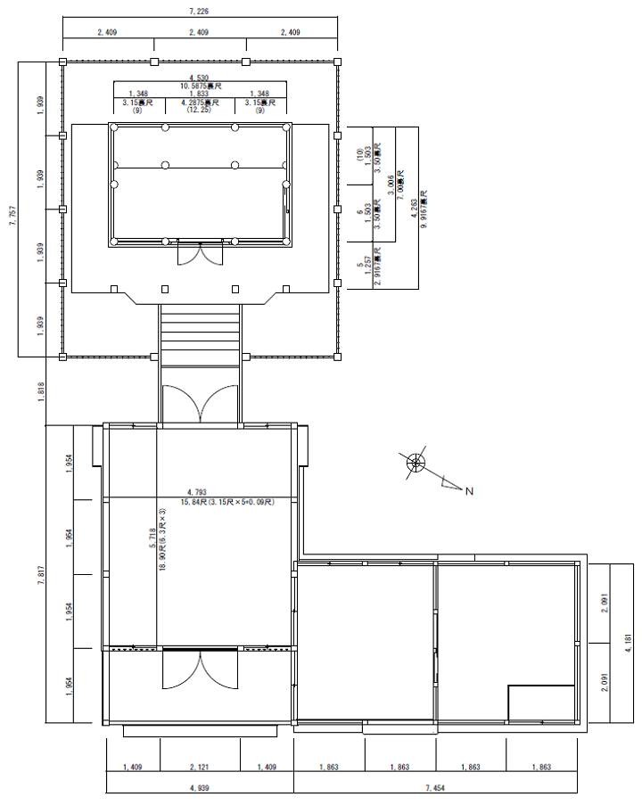
本殿平面計画と柱断面寸法 | ![]() 本殿は東向きに建てられ、正面三間分の実測値は4,530㎜、中央間1,833㎜、端間1,348㎜、側面二間はそれぞれ1,503㎜、正面身舎柱から向拝柱まで1,257㎜です。鉄尺(1尺302.58㎜)に換算すると三間分14.971尺、中央間6.058尺、端間4.455尺、身舎側面二間は4.967尺、正面身舎柱から向拝柱まで4.154尺となります。平面寸法の関係性が判りにくいので裏目に換算してみます。 裏目尺(表×√2)に換算すると中央間4.284裏尺、端間3.15裏尺、側面二間はそれぞれ3.512裏尺、向拝奥行は2.938裏尺となります。正面端間と身舎側面各間の寸法比がほぼ9:10となっていますので、身舎側面各間は3.50裏尺とみなすと身舎側面は7.0裏尺になります。向拝奥行は身舎側面各間3.5裏尺と寸法比が6:5に近く2.91666・・・裏尺とみられます。正面中央間は4.2875裏尺とすると、身舎側面各間3.5裏尺と49:40の寸法比となりますが、実測値が判りませんので再調査ができれば報告したいと思います。 拝殿は奥の室の桁行方向(奥行)柱内々寸法は5.718㎜で、鉄尺(1尺302.58㎜)に換算すると18.9尺となり6.30尺の三倍となりますが、梁間方向は4,793㎜15.84尺で3.15尺×5より0.09尺長くなっています。拝殿も再調査ができれば報告したいと思います。 |
---|